マンション
2025/12/05 更新
リーフィアレジデンス橋本
- 価格
- 4,990万円 (非課税)
- 所在地
- 東京都町田市小山ヶ丘6丁目
- 交通
- 横浜線・橋本駅 北口 徒歩19分
- 物件コード1:SMB38129
- 物件コード2:BA00622198
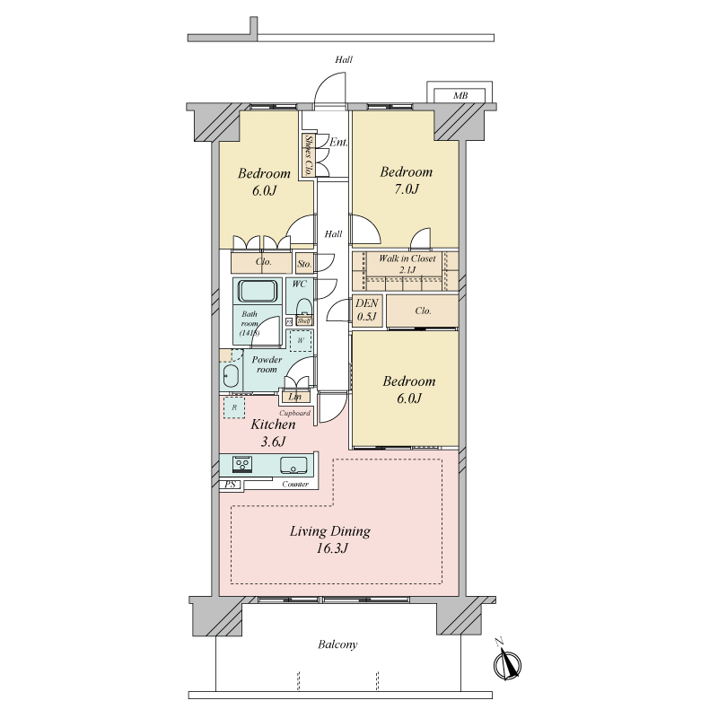
総戸数425戸/専有面積88.44平米/6階南東向き住戸
- 物件詳細
- 地図・周辺施設
- ローンシミュレーション
注目
総戸数425戸/専有面積88.44平米/6階南東向き住戸
~共用施設~
○キッズルーム
〇コミュニティルーム
〇キッチンスタジオ
〇サイクルシェア
~住戸の特徴・設備・仕様~
○ LD部分に床暖房
〇約2.1帖のウォークインクローゼット
〇キッチンに食洗器
〇カップボード
〇玄関壁面一部エコカラット
〇1418サイズユニットバス
〇キッチンと洗面室回遊可
〇納戸(約0.5帖)
〇全居室6帖以上(収納あり)
〇LD部分と洋室の一部にアクセントクロス
〇LDにピクチャーレール
〇フロアコーティング実施(分譲時)
〇バルコニー奥行2.5m
〇浴室暖房乾燥機
物件概要
- 価格
- 4,990万円 (非課税) ローンシミュレーション
- 物件種別
- 売買 中古マンション
- 建物名称
- リーフィアレジデンス橋本
- 所在地
- 東京都町田市小山ヶ丘6丁目
- 交通
- 横浜線・橋本駅 北口 徒歩19分
- 築年月
- 2021年04月
- 現況
- 居住中
- 専有面積
- 88.44m²(壁芯)
- 間取り
- 3LDK
- 建物構造
- RC(鉄筋コンクリート)
- 所在階/階数
- 6階/12階建
- 駐車場
- -
- 空き物件数/総戸数
- -/425戸
- 主要採光面
- 南東
- バルコニー面積
- 13.2m²
- 修繕積立金
- (月額)8,400円
- 修繕積立基金
- -
- 管理費
- (月額)16,540円
- 土地面積
- -
- 土地権利
- 所有権
- 坪単価
- 186.6万円
- 建築条件※注1
- -
- 用途地域
- 第二種住居地域
- 地勢
- 建ぺい率/容積率
- -
- 国土法届出
- 不要(否)
- 引渡 注2
- 2026年02月下旬
- 取引態様
- 媒介
- 建築確認番号
- -
- 施工会社
- 株式会社長谷工コーポレーション
- 管理
- 管理員/日勤、管理方式/全部委託、管理組合/有、管理会社/株式会社小田急ハウジング
- 設備・条件
- 公営水道、都市ガス、公共下水、ガスコンロ、ペット可、インターネット有、バルコニー有、追い焚き、システムキッチン、W.INクローゼット、2階以上、エレベーター、フローリング、宅配ボックス、床暖房、モニタ付インターホン、温水洗浄便座、カウンターキッチン、浴室乾燥機、食器洗浄乾燥機、24時間換気、キッズルーム・託児所
- 備考
- 「設備あんしん保証対象物件」(24時間緊急対応サービス含) 詳しい内容は
営業担当者にお聞きください。なお、下記URLでも確認いただけます。
(URL: https://www.suminavi.com/campaign/anshin-hosho/mansion.html)
その他費用等:
インターネット料(月額) 550円、住民コミュニティサポート 300円
- 次回更新日
- ※次回更新は、 2025年12月12日 を予定しております。
- 建築条件付売地とは、3ヶ月以内に建築請負契約が成立しなかった場合、売買契約は白紙となります。
- 引渡欄に「即時」と表示の物件は、残代金の支払いが完了次第、引渡が可能となります。
電話でのお問い合わせはこちら
お電話の際は、「すみなびを見た」とお伝え頂けるとスムーズです。
0120-52-4063
(受付時間) 10:00 ~ 18:00 (定休日) 毎週火曜日・水曜日
住友林業ホームサービス株式会社 町田店
- 所在地
- 〒194-0022東京都町田市森野1丁目33番11号 町田森野ビル1階
- 電話番号
- 0120-52-4063
- 免許番号
- 国土交通大臣(16)第220号
- 定休日
- 毎週火曜日・水曜日
- 不動産は成約済あるいは販売中止・価格変更となる場合もあります。
不動産の販売状況は、上記店舗へお問い合わせください。
- 不動産協会会員・(一社)不動産流通経営協会会員・(公社)首都圏不動産公正取引協議会加盟






















